Aktuelle Projekte
Hotel und Gastronomie
Projektplanung ehemaliges Café Baubeginn 2017
12 Zimmer Gästepension Baubeginn 2017
In Planung Weinlokal Metropolregion-Rhein-Neckar voraussichtliche Umsetzung 2018
Wohnen
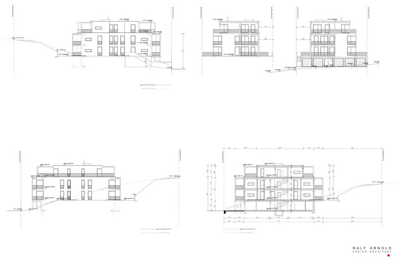
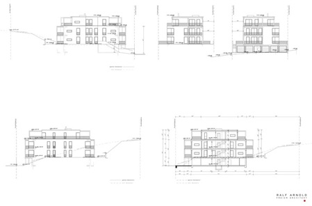
Projekt moderne ETW Einheit Umsetzung 2017 in Bad Dürkheim
Bild in Lightbox öffnen (open image in lightbox). Moderne ETW Einheit in ruhiger Hanglage
Bild in Lightbox öffnen (open image in lightbox). Moderne ETW Einheit in ruhiger Hanglage
